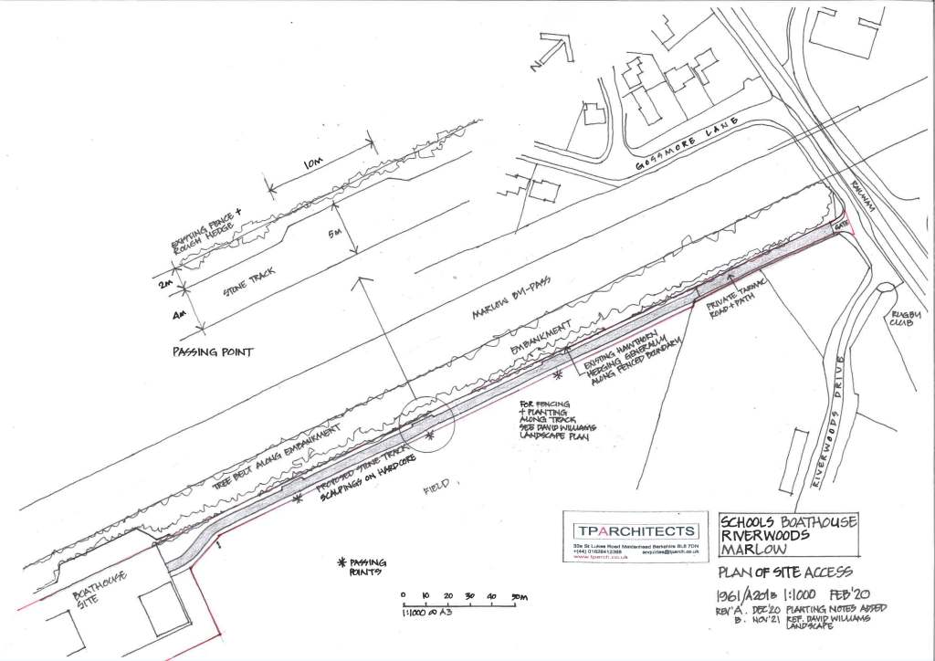
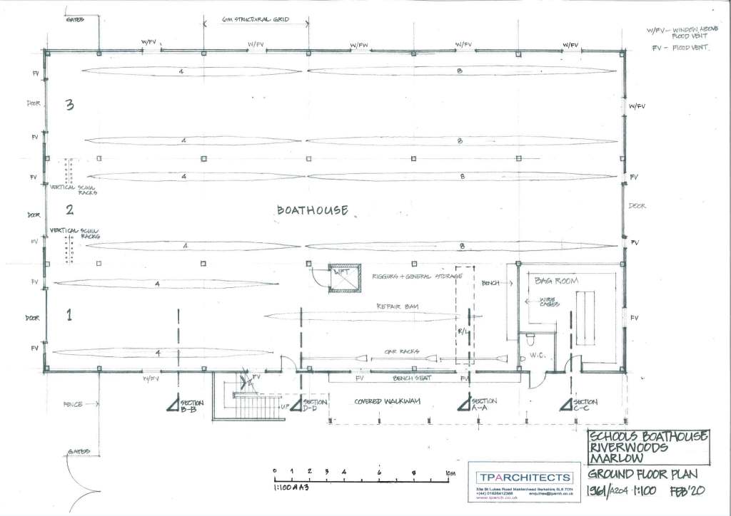
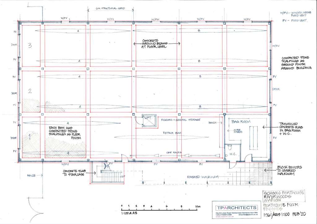
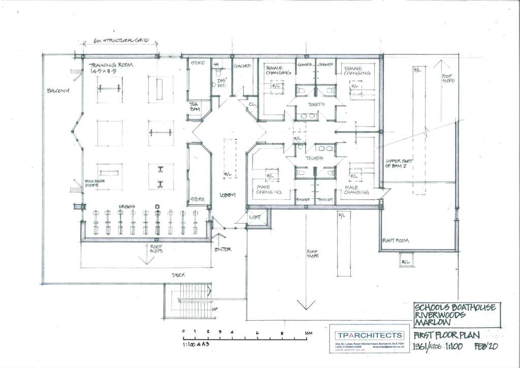
After decades of searching, exploring over nineteen different sites and operating from four host locations, we finally have planning permission to build a fabulous new boathouse. This will secure the rowing future at Great Marlow School (GMS) and Sir William Borlase’s Grammar School (Borlase) for decades to come and support the wider district rowing community.
The boathouse will be secure, weather-proof and fully appropriate for junior rowers to develop. It will also bring the two schools and our community together.






















